TRẢI NGHIỆM
Hồ sơ thiết kế biệt thự
Hồ sơ thiết kế biệt thự trong xây nhà hiện nay đóng vai trò rất quan trọng, toàn bộ hồ sơ thiết kế sẽ quyết định toàn bộ giá trị tổng thể của một ngôi nhà, dù lớn hay nhỏ từ Kiến Trúc đến Kết Cấu, hệ thống Điện, Nước khi bắt đầu tiến hành các công tác thi công xây dựng ngoài công trường thực tế..
Hôm nay NAGOPA sẽ giới thiệu đến các bạn về toàn bộ những gì về một bộ hồ sơ thiết kế biệt thự cần từ A-Z đầy đủ nhất phục vụ cho quá trình thi công xây nhà để công trình được diễn ra hiệu quả.
Hồ sơ thiết kế biệt thự gồm có những gì?
Cũng tương tự như hồ sơ thiết kế nhà phố, đây là câu hỏi mà được rất nhiều chủ đầu tư đang có ý định xây nhà quan tâm và cần phải biết để có thể toàn tâm cho việc lựa chọn và đặt dịch vụ thiết kế. Việc thực hiện hồ sơ thiết kế hiện nay sẽ gồm có 4 phần chính đó là: Phần Kiến Trúc, Phần Kết Cấu, Phần Điện Nước(M&E), Phần Nội Thất. Cả 4 phần đều rất quan trọng, sự sai sót nhỏ sẽ làm ảnh hưởng lớn đến toàn bộ ngôi nhà.
TRẢI NGHIỆM
Phần kiến trúc trong hồ sơ thiết kế
Phần kiến trúc là phần vô cùng quan trọng, bước đầu tiên để kiến trúc sư và chủ đầu tư làm việc với nhau. Và đây cũng là phần mang lại nhiều giá trị cảm xúc nhất đến cho các gia đình. Phần kiến trúc được chia làm 2 phần: Bản vẽ khai triển mặt bằng và bản vẽ phối cảnh mặt tiền 3D.
1. Phần thiết kế phối cảnh 3D biệt thự trong hồ sơ thiết kế
Đây là tổng thể hình ảnh 3D của ngôi nhà. Sau khi được đơn vị thiết kế và chủ nhà phê duyệt. Trước đó cũng đã trải qua 1 đến 2 phương án kiến trúc.

Đây là Kiến trúc ngôi biệt thự mái nhật, được trích lấy từ hồ sơ của nhà gia đình Chú Trung( VLXD Thành Châu tại Đồng Xoài Bình Phước.)
→ Xem thêm toàn bộ kiến trúc của căn biệt thự: Biệt Thự 2 Tầng Mái Nhật | Dành Cho Gia Đình 3 Thế Hệ | GĐ Chú Trung
2. Phần thiết kế kỹ thuật thi công kiến trúc

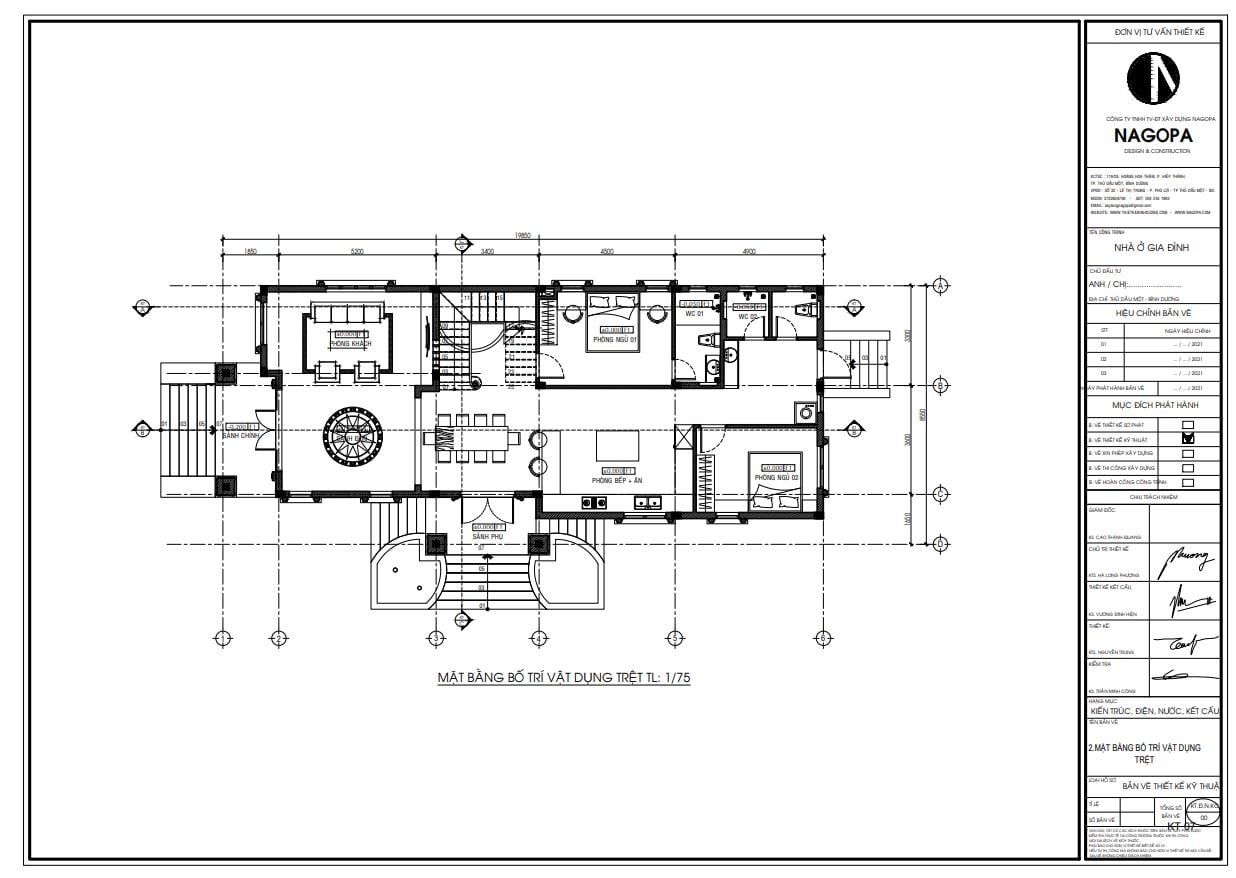
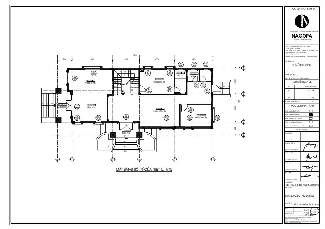
Hình ảnh mặt bằng kiến trúc – Bố trí công năng sử dụng tầng trệt của ngôi biệt thự

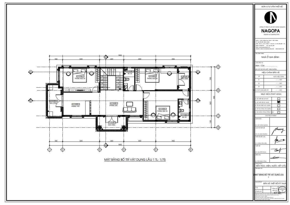
Hình ảnh mặt bằng kiến trúc – Bố trí công năng sử dụng tầng lầu của ngôi biệt thự
Mặt bằng bố trí vật dụng thể hiện rõ các không gian sinh hoạt cho từng tầng theo chiều dài mảnh đất,vị trí đặt các vật dụng, bàn ghế, cầu thang, không gian bếp, phòng khách, phòng ngủ, phòng tắm, nhà vệ sinh…đều được KTS tư vấn thể hiện tối ưu nhu cầu sử dụng của gia đình.
Sau khi phương án mặt bằng bố trí công năng được đơn vị thiết kế và chủ đầu tư thống nhất. Đây sẽ là cơ sở cho việc tiến hành vào giai đoạn thiết kế phối cảnh 3D kiến trúc cho toàn bộ ngôi nhà.

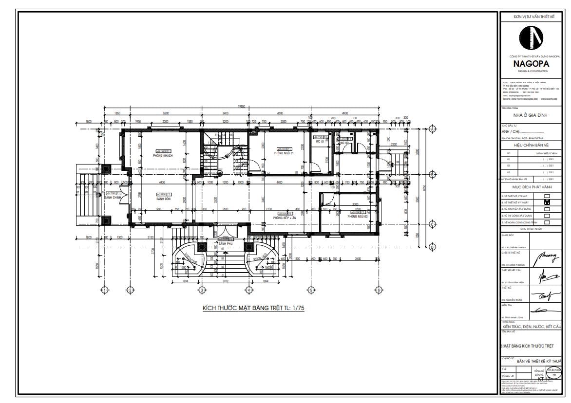
Hình ảnh: Mặt bằng 2D thể hiện chi tiết kích thước các vị trí tường xây. Nếu thiếu bản vẽ này trong hồ sơ, thì đội thợ sẽ không định vị được các vị trí nơi có tường, cũng như kích thước tường để xây.

Hình ảnh: Mặt bằng 2D mặt đứng chính của công trình nhà biệt thự, được thể hiện chi tiết kích thước, cao độ các tầng và các điểm trang trí, đường nét tại mặt tiền chính công trình. Nếu chỉ dựa vào hình ảnh 3D phối cảnh, nhưng lại không có được bản vẽ chi tiết này, thì các nhóm thợ sẽ không triển khia thi công đúng kích thước công trình dẫn đến không đạt đúng với hồ sơ thiết kế và không thể thi công.

Nếu chỉ dựa vào hình ảnh 3D phối cảnh, nhưng lại không có được bản vẽ chi tiết này, thì các nhóm thợ sẽ không triển khai thi công đúng kích thước công trình dẫn đến không đạt đúng với hồ sơ thiết kế và không thể thi công.

Hình ảnh: 2D mặt cắt của công trình biệt thự, thể hiện tổng thể không gian bên trong ngôi nhà.

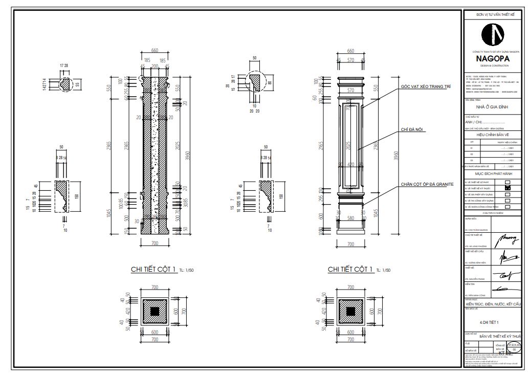
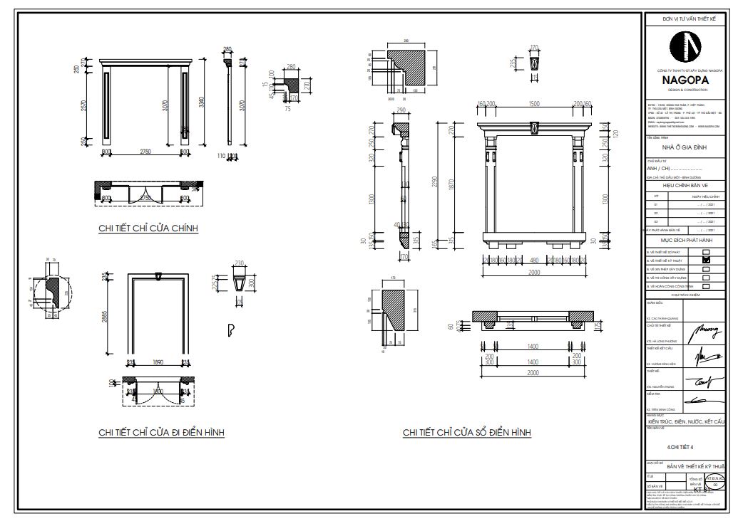
Chi tiết kiến trúc cột

Chi tiết kiến trúc phào chỉ trang trí

Hình ảnh: Mặt bằng định vị vị trí cửa, toàn bộ số lượng cửa như: Cửa chính, cửa phòng, cửa sổ của ngôi nhà. Đều phải được thể hiện theo đúng chi tiết thiết kế, và đảm bảo theo đúng yêu cầu và mục đích thiết kế.

Tất tần tật số lượng cửa, kích thước cửa trong ngôi nhà đều được khai triển và bốc tách dựa trên phương án phối cảnh 3D và tiêu chuẩn thiết kế, thuận tiện cho việc thống kê khối lượng vật và và đảm bảo trong việc thi công đúng và đạt hiệu quả thẩm mỹ.
Hiện nay cũng xuất hiện rất nhiều trường hợp xây nhà không có bản vẽ đầy đủ, thiếu bản vẽ chi tiết cửa, toàn bộ cửa của ngôi nhà đều không có bản vẽ, khi sản xuất và thi công đều dựa theo trực giác, thói quen hoặc chỉ đạo của chủ nhà làm ảnh hưởng rất lớn và mất giá trị thẩm mỹ của toàn công trình.

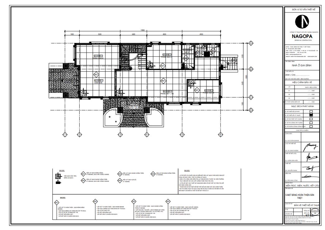
Hình Ảnh: Mặt bằng lát gạch sàn( gạch nền) của ngôi nhà, định vị vị trí lát gạch, kích thước từng viên gạch của từng không gian: Như phòng khách, phòng ngủ, phòng bếp, nhà vệ sinh,…, từng không gian trong căn nhà. Đảm bảo tiêu chí kỹ thuật và thâm mỹ trong không gian. Bản vẽ này trong hồ sơ thiết kế biệt thự cũng rất quan trọng. Đã có rất nhiều ngôi nhà được xây dựng, tuy nhiên không phải thợ nào cũng có kiến thức, có tay nghề và gu thẩm mỹ tốt để tự thực hiện đúng. Kết quả đã làm phá hỏng đi không gian và chất lượng của ngôi nhà.

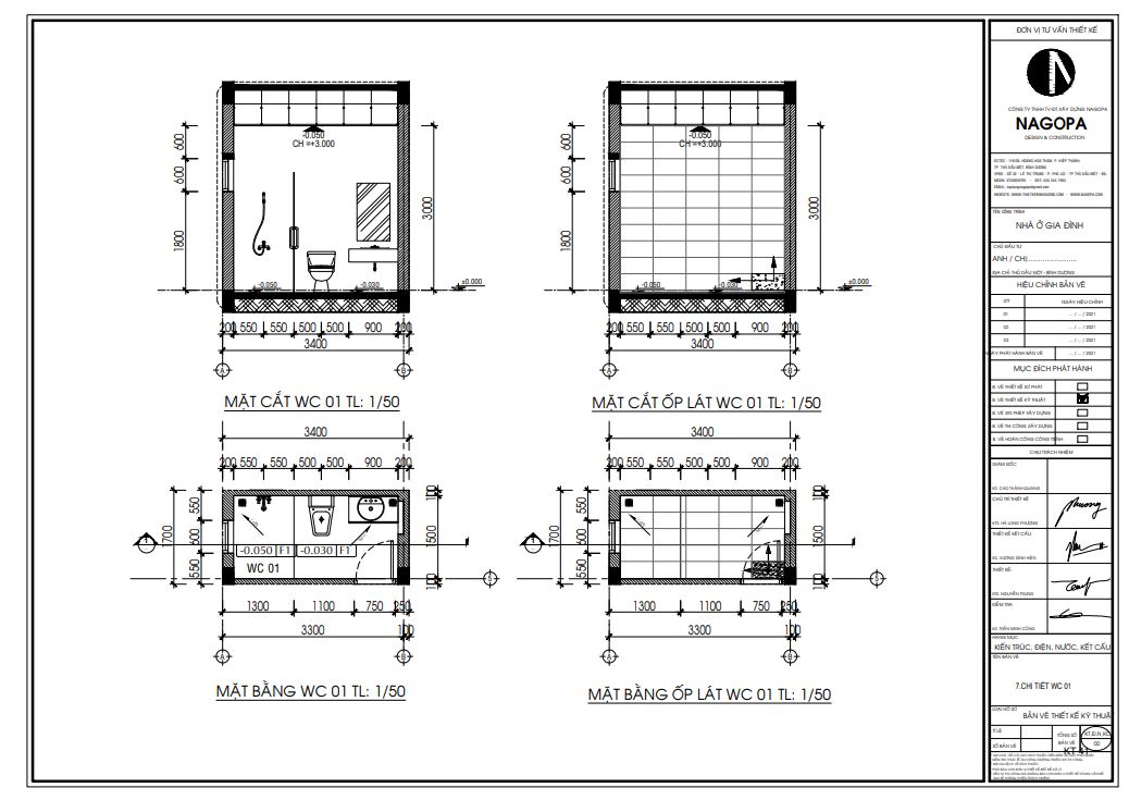
Bản vẽ nhằm thể hiện kích thước chi tiết bên trong nhà wc, vị trí bố trí thiết bị vệ sinh trong phòng wc. Vị trí phểu thu thoát sàn, độ dốc. kích thước gạch ốp tường wc. Nghe có vẻ sẽ rất đơn giản, tuy nhiên nếu thiếu bản vẽ chi tiết này trong hồ sơ ngôi nhà. Không gian wc sẽ không được hoàn hảo và đảm bảo theo đúng thiết kế đề ra.

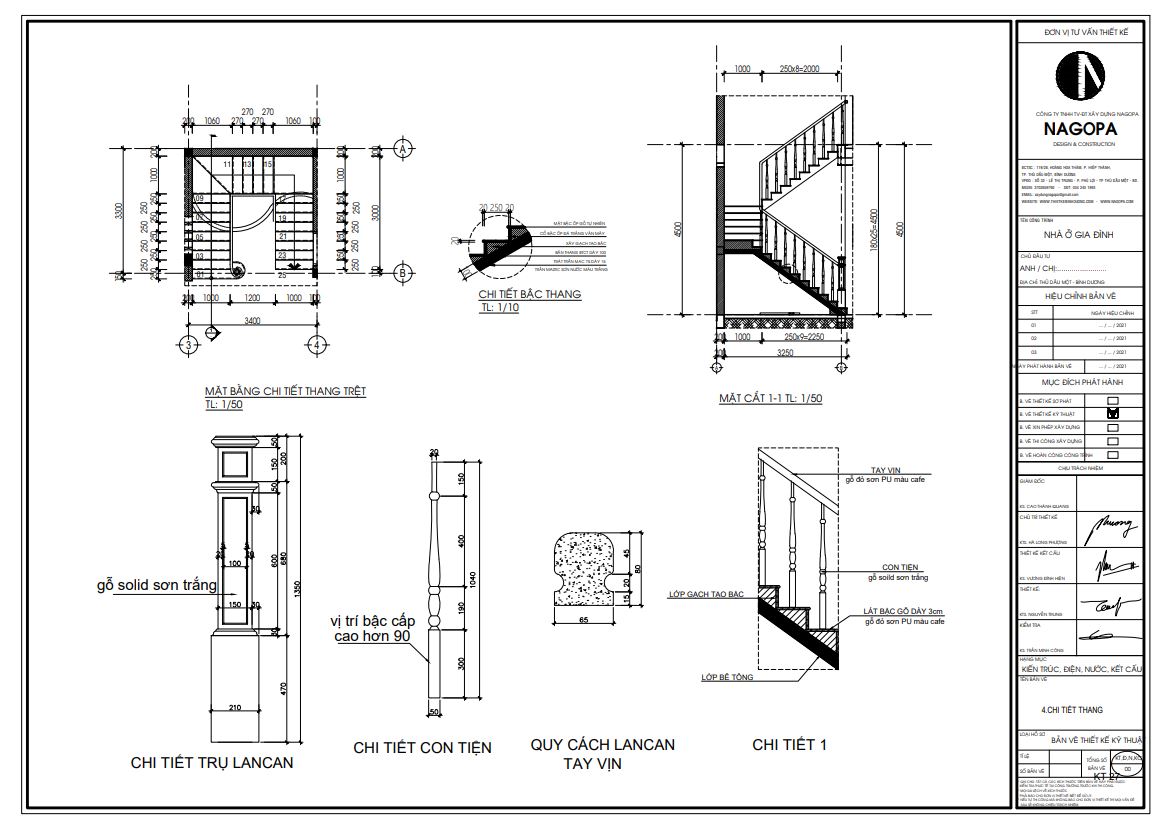
Hình ảnh: Mặt bằng 2D chi tiết kích thước, chiều dài, chiều rộng hạng mục cầu thang trong nhà. Đảm bảo tiêu chí sử dụng được tính toán một cách khoa học và an toàn.
Toàn bộ hoàn chỉnh Phần Kiến Trúc trong bộ hồ sơ thiết kế biệt thự, còn khá nhiều chi tiết như: Mặt bên, mặt sau nhà, chi tiết trang trí, mặt bằng mái, lát sàn, chi tiết cổng, chi tiết lan can,theo từng hạng mục….vì nội dung dung lượng trên mỗi bài viết có hạn, nên NAGOPA chỉ nêu lên 1 vài bản vẽ, để giúp các bạn chủ nhà, các chủ đầu tư tương lai dễ dàng nhìn nhận và hình dung về tầm quan trọng của một bộ bản vẽ thiết kế kỹ thuật trong xây nhà. Bây giờ chúng ta sẽ tiếp đến Phần Kết Cấu nhé.
TRẢI NGHIỆM
Phần kết cấu trong hồ sơ thiết kế
Phần kết cấu là phần vô cùng quan trọng, khi đã hoàn thiện được phần tổng thể kiến trúc của ngôi nhà. Nếu phần kiến trúc thể hiện sự tổng thể về vẻ đẹp, thẩm mỹ bên ngoài công trình. Phần kết cấu trong hồ sơ được tính toán đảm bảo chịu tải trọng cho ngôi nhà, độ bền chắc của ngôi nhà theo thời gian những vấn đề liên quan đến kỹ thuật và tiêu chuẩn để thi công móng, cột, dầm sàn…các chi tiết kỹ thuật khác, đảm bảo cho công trình đạt được hiểu quả sử dụng và độ bền vững của công trình.

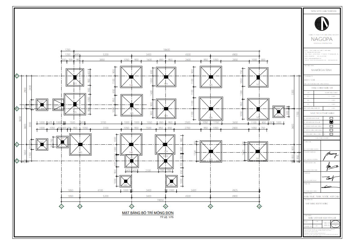
Hình ảnh: Bản vẽ mặt bằng bố trí móng biệt thự 2 tầng tại Bình Phước (Phương án sử dụng móng đơn)

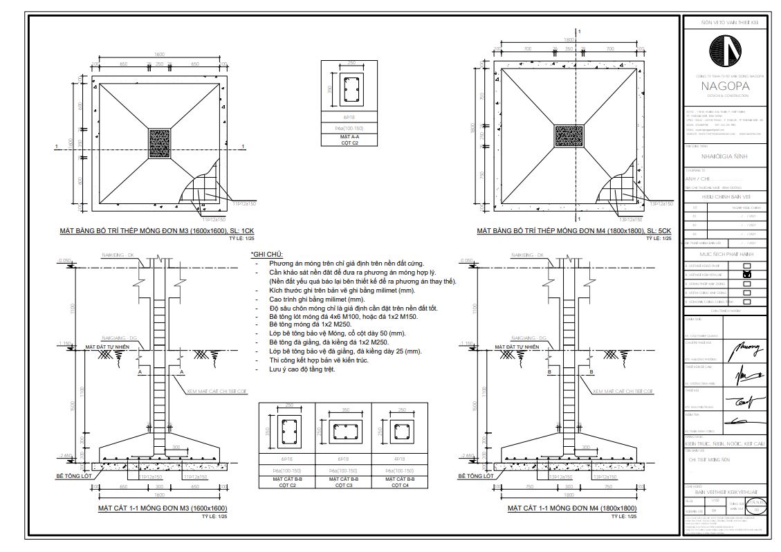
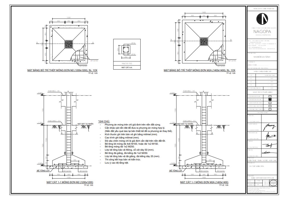
Hình ảnh: Chi tiết bản vẽ móng một công trình biệt thự 2 tầng tại Bình Phước.

Hình ảnh: Chi tiết bản vẽ móng một công trình biệt thự 2 tầng tại Bình Phước.
Bản vẽ chi tiết kết cấu móng nhà biệt thự 2 tầng. Trong mặt bằng thiết kế móng, có bao nhiêu móng thì thể hiện chi tiết bấy nhiêu.

Bản vẽ mặt bằng đà giằng nhà biệt thự. Thể hiện chuẩn vị trí và kích thước.

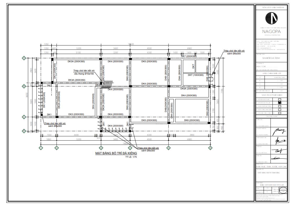
Hình ảnh: Bản vẽ mặt bằng đà kiềng nhà biệt thự. Thể hiện chuẩn vị trí và kích thước của hệ khung đà kiềng.
Bản vẽ chi tiết của từng cây đà kiềng. Trong mặt bằng đà kiềng có bao nhiêu cây đà kiềng, phải thể hiện bấy nhiêu.

Mặt bằng bố trí cột
Bản vẽ mặt bằng cột, thể hiện vị trí kích thước định vị của từng cây cột trong ngôi nhà. Toàn bộ được thiết kế bằng kết cấu BTCT. Việc định vị chuẩn tim cốt của từng cây cột rất quan trọng. Ảnh hưởng đến toàn bộ hệ tống truyền lực của ngôi nhà.
Nếu nhà có bao nhiêu tầng, thì phải có đầy đủ bản vẽ mặt bằng thể hiện cột của bấy nhiêu tầng.

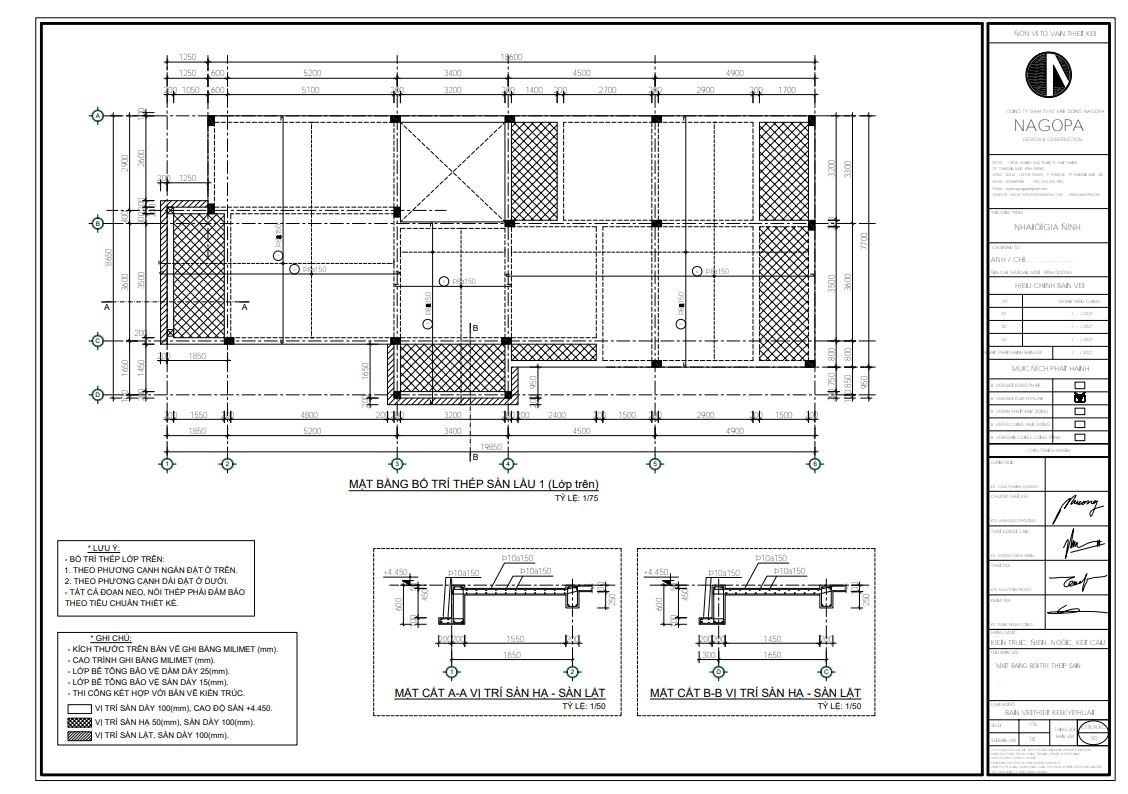
Hình ảnh: bản vẽ mặt bằng bố trí thép sàn lầu 1 của công trình biệt thự
Bản vẽ minh họa mặt bằng bố trí thép sàn lớp dưới sàn lầu 1, tuy nhiên trong hồ sơ thể hiện phải đầy đủ, nhà có bao nhiêu sàn phải thể hiện đầy đủ bấy nhiên mặt bằng bố trì, cả thép lớp trên và lớp dưới. Tránh sai sót, ảnh hưởng đến kết quả thi công ở ngoài công trình.

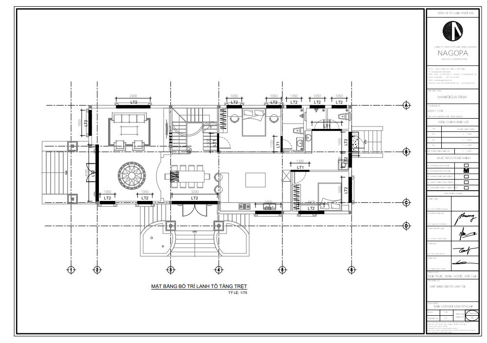
Hình ảnh minh họa: Bản vẽ mặt bằng bố trí đà lanh tô trong hồ sơ thiết kế biệt thự 2 tầng nhà Chú Trung ở Bình Phước.
Phần đà lanh tô trong thiết kế và thi công đối với nhiều chủ đầu tư có thể sẽ không nắm được phần này, tuy nhiên nếu thiếu trong bản vẽ thiết kế hoặc thi công sẽ làm ảnh hưởng rất lớn đến chất lượng công trình, các diện chịu lực và sự liên kết giữa các thành phần trong công trình bị ảnh hưởng. Nhà có bao nhiêu tầng, mỗi tầng đều phải được thể hiện rõ bản vẽ các vị trí bố trí đà lanh tô.
TRẢI NGHIỆM
Phần điện nước trong hồ sơ thiết kế
Vai trò không khác gì so với Phần Kiến Trúc và Phần Kết Cấu trong toàn bộ hồ sơ kỹ thuật thiết kế của một ngôi nhà.
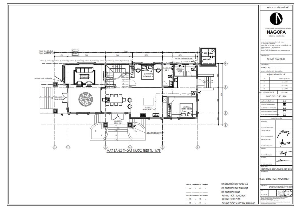
Phần điện nước được thiết tốt ngay từ ban đầu sẽ đáp ứng mọi nhu cầu sinh hoạt cho các thành viên thuận lợi nhất, với các mặt bằng: ổ cắm, đèn chiếu sáng, thiết bị điện, hệ thống cấp nước, hệ thống thoát nước, hố ga, bể tự hoại, máy lạnh, camera… Phần này cũng cần đơn vị thiết kế có chuyên môn, sự trải nghiệm, và kinh nghiệm thi công thực tế biệt thự, để bố trí phù hợp tối ưu công năng sử dụng. Chủ đầu tư có thể xem qua và đề xuất về cách bố trí ổ cắm, các nguồn cấp nước đã phù hợp với gia đình hay không và trao đổi lại với Kiến Trúc Sư, Kỹ Sư thiết kế.

Bản vẽ mặt bằng bố trí điện nguồn
Bản vẽ bố trí nguồn điện, ổ cắm điên. Toàn bộ ngôi nhà đều phải được thiết kế ổ cắm, công tác…đúng vị trí sử dụng, đảm bảo đúng với quy chuẩn an toàn trong sinh hoạt.

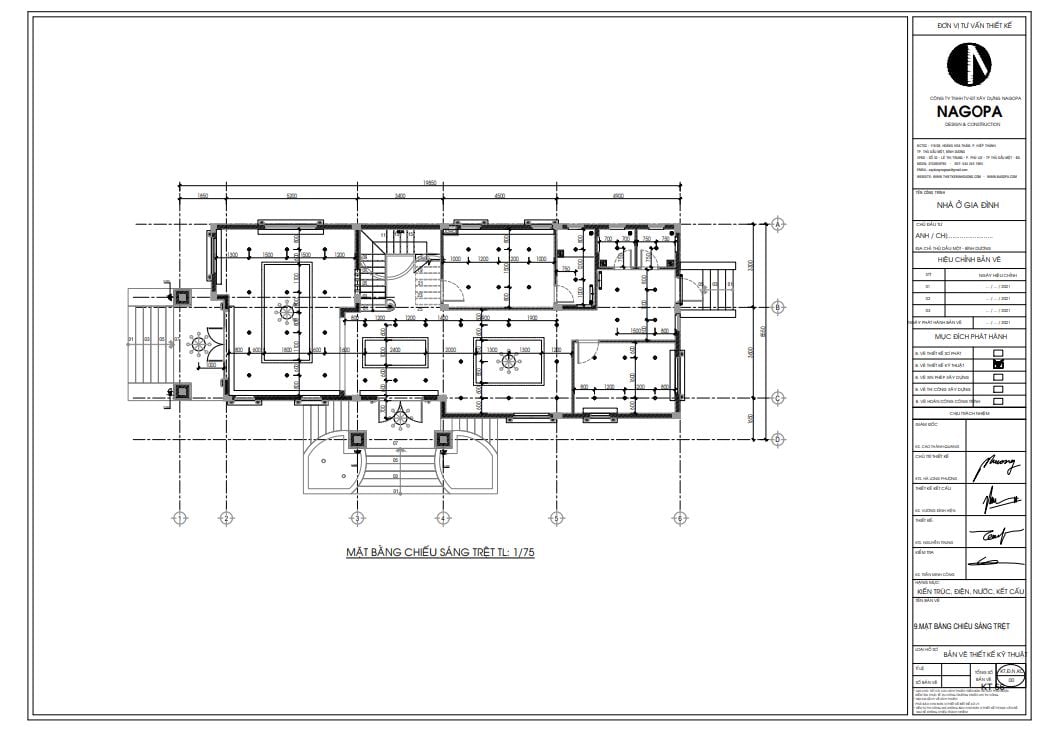
Hình ảnh: bản vẽ mặt bằng bố trí điện chiếu sáng

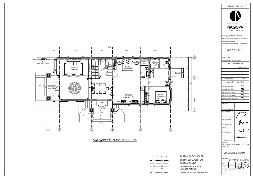
Hình ảnh minh họa: Bản vẽ cấp nước trong hồ sơ thiết kế biệt thự. Toàn bộ bản vẽ cấp thoát nước các tầng đều phải được thực hiện.
TRẢI NGHIỆM
Phần nội thất trong hồ sơ thiết kế biệt thự
Về cơ bản so với trước đây, Phần nội thất trong bộ hồ sơ thiết kế hoàn chỉnh, thường được rất ít gia đình quan tâm. Một phần lo ngại về chi phí thực hiện thiết kế. Một phần do thói quen của một vài bộ phận gia đình chưa có đủ trải nghiệm và hiểu được những lợi ích trong việc thực hiện phần thiết kế nội thất trong ngôi nhà.
Nhưng so với hiện nay, chất lượng không gian sống ngày một cũng được nhiều gia đình quan tâm. Xu hướng thuê thiết kế nội thất đang trở thành một dịch “hot” trong lĩnh vực thiết kế – xây dựng, khi yêu cầu của nhiều gia đình ngày được nâng cao.
Hy vọng với bài viết trên chủ đầu tư đã có thêm những thông tin hữu ích về trọn bộ hồ sơ thiết kế nhà biệt thự. Nếu chủ đầu tư có thắc mắc, hay cần sự hỗ trợ tư vấn thêm về những vấn đề liên quan đến việc thực hiện thiết kế biệt thự, có thể liên hệ với NAGOPA để được tư vấn sớm nhất.
thông tin liên hệ
- Địa chỉ: Số 32, Đường Lê Thị Trung, P. Phú Lợi, TP.Thủ Dầu Một, Bình Dương
- Fanpage: https://www.facebook.com/nagopa
- Hotline: 0836 198 886
- Bài viết nguồn: https://nagopa.com/ho-so-thiet-ke-biet-thu



