Biện Thự Hiện Đại 3 Tầng 5 Phòng Ngủ | GĐ Chú Toàn Tại Tân Uyên
Chào mọi người, hôm nay NAGOPA DESIGN tiếp tục ra mắt một sản phẩm nhà biệt thự hiện đại 3 tầng nữa, đây là một ngôi nhà được thực hiện theo phong cách thiết kế hiện đại được chúng tôi thực hiện thiết kế và thi công cho gia đình Chú Toàn tại Hội Nghĩa, Tân Uyên, Bình Dương. Mời mọi người cùng xem và trải nghiệm qua sản phẩm thiết kế này nhé.
1. Tổng quan: Biệt thự hiện đại 3 tầng 5 phòng ngủ | GĐ Chú Toàn tại Tân Uyên
- Đơn vị thiết kế: Kiến Trúc Xây Dựng NAGOPA
- Văn Phòng: Số 32, Đường Lê Thị Trung, P. Phú Lợi, TP.Thủ Dầu Một, Bình Dương
- Diện tích đất: >400m2
- Phong cách thiết kế: Biệt Thự Hiện Đại
- Quy mô công trình: Biệt Thự 3 Tầng
- Đặt điểm công trình: Hội Nghĩa, Tân Uyên Bình Dương
- Diện tích xây dựng: 150m2
- Thời gian thực hiện: Tháng 05/2022
- Công năng sử dụng: 01 Phòng Khách, 01 Bếp, 05 Phòng Ngủ, Phòng SHC ; Phòng giải trí ; Bancon ; Sân thượng ; 5 Wc
2. Phối cảnh 3D: Biệt thự hiện đại 3 tầng 5 phòng ngủ | GĐ Chú Toàn tại Tân Uyên
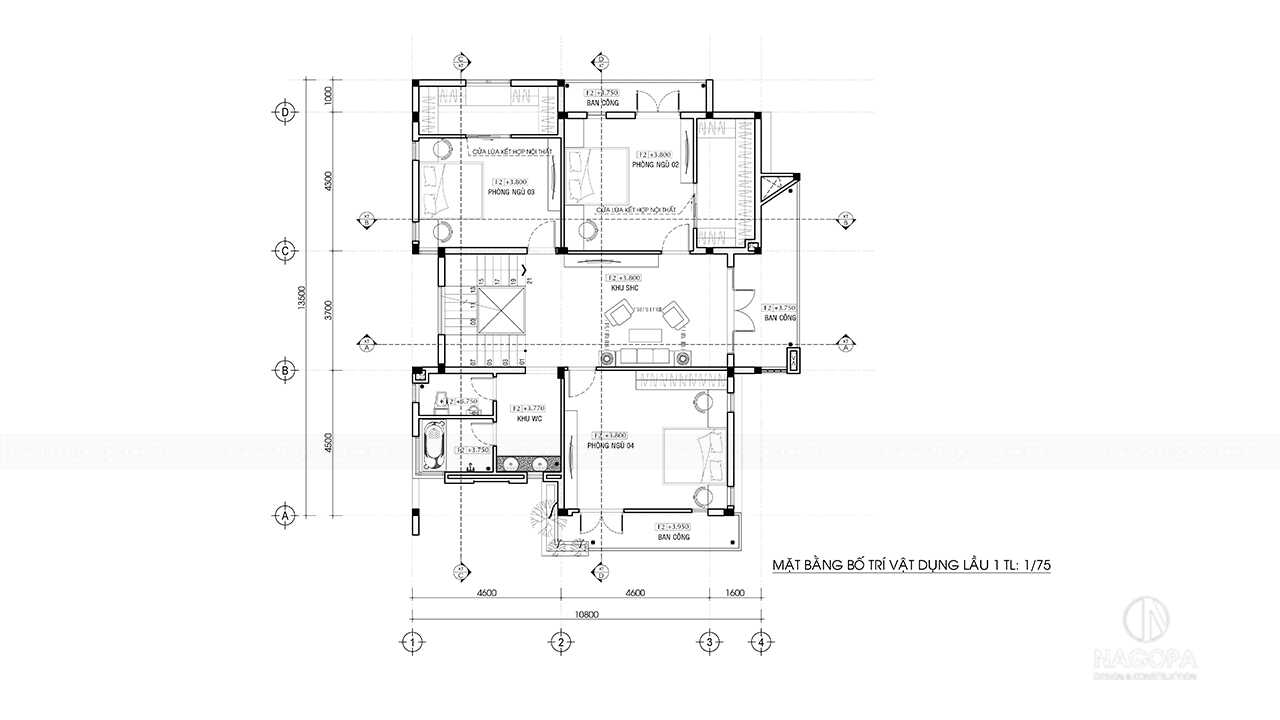
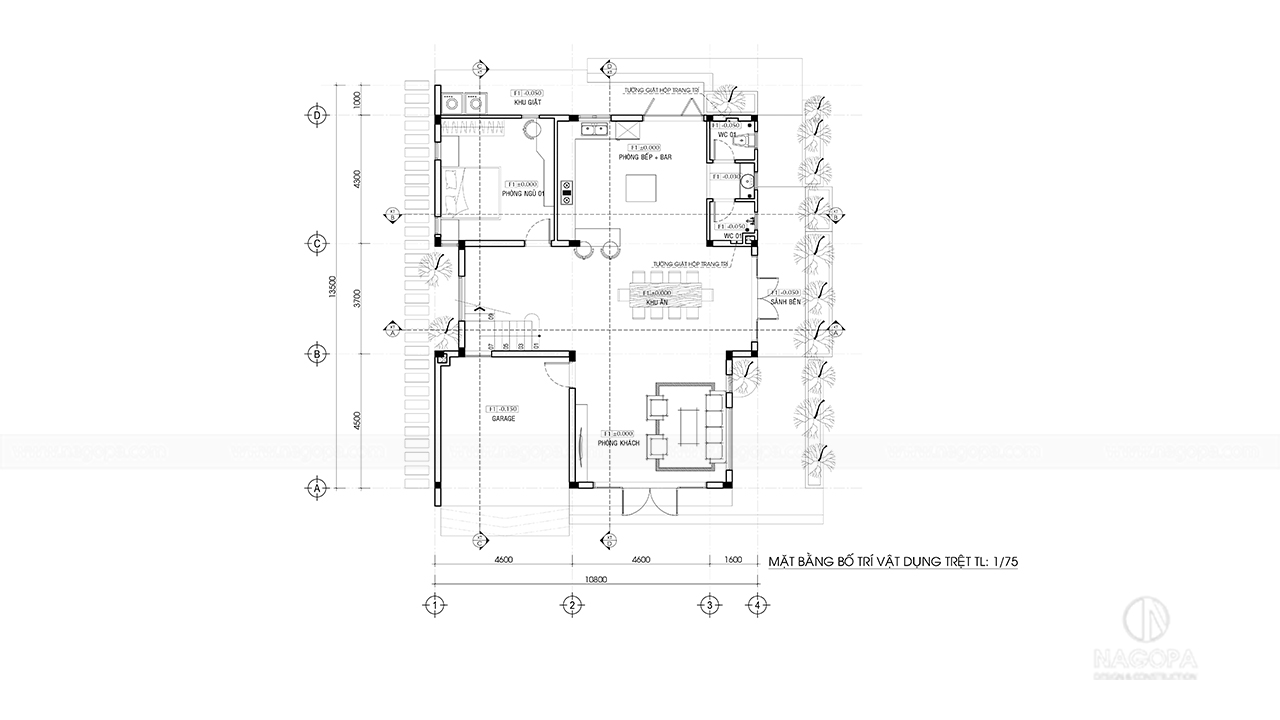
Về mặt công năng ngôi nhà được thiết kế là sự kết nối của các thế hệ. Tầng trệt gồm Garage xe, phòng khách, phòng bếp ăn, 01 phòng ngủ cho bố mẹ lớn tuổi. Tầng 2 gồm có không gian sinh hoạt chung cũng là trung tâm của ngôi nhà, với 3 phòng ngủ có diện tích thiết kế rộng rãi, phòng tắm, nhà vệ sinh được tách biệt. Những phòng ngủ này được sử dụng cho các thành viên trong gia đình, toàn bộ không gian được kết nối với khu vực ban công thông thoáng.
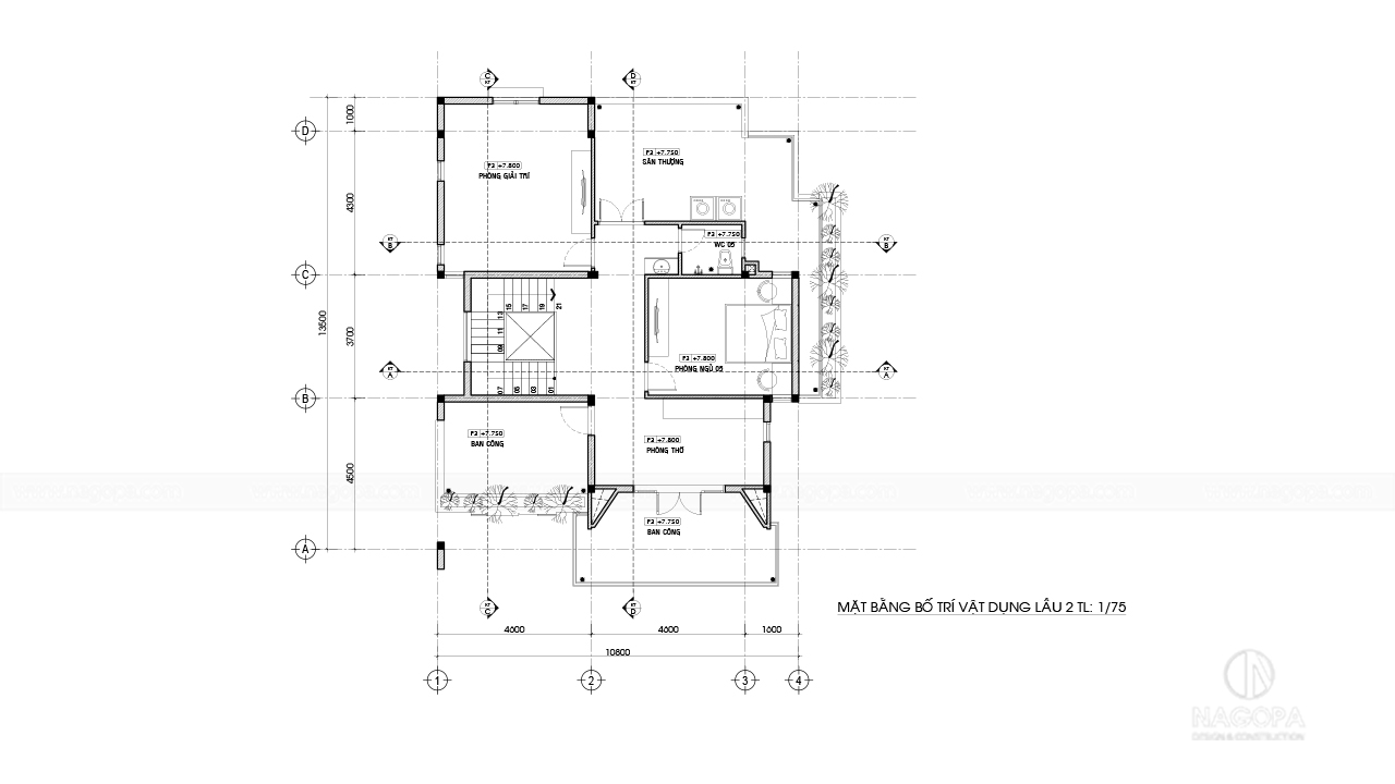
Tầng 3 là có phòng giải trí, phòng thờ, sân thượng, khu vực giặt phơi, 01 phòng ngủ dự trữ dành cho khách mỗi khi có dịp đến chơi và ở lại và không gian ban công rộng lớn.

Kiến trúc ngôi nhà được thiết kế mang phong cách thiết kế hiện đại. Các màu sắc sử dụng là tông chủ đạo chính của ngôi nhà là màu trắng kết hợp cùng với những điểm nhấn nổi bật là màu gạch ốp vân giả gỗ làm cho ngôi nhà thêm phần tinh tế và sang trọng hơn.

Biệt thự hiện đại 3 tầng của gia đình Chú Toàn tại Hội Nghĩa Tân Uyên
Lợi thế làm nên vẻ đẹp của ngôi nhà không thể không nhắc đến đó là phần khuôn viên đất. Việc sở hữu khuôn viên đất rộng rãi và thông thoáng giúp cho việc thiết kế ngôi biệt thự này có thể tận dụng tối đa về tính kết nối với thiên nhiên hơn. Ngôi nhà hầu như được khai thác tối đa 4 mặt tiền.

Một phần không thể thiếu mang đến sự sang trọng và hiện đại của ngôi nhà chính là toàn bộ hệ thống của đi và cửa sổ, tất cả đều được sử dụng vật liệu nhôm Xingfa kính cường lực, giúp cho ngôi nhà lung linh và quyến rủ hơn.

Góc nhìn trên cao thể hiện tổng thể khuôn viên sân trước của ngôi nhà.

View nhìn bên hông của ngôi nhà. Mãng xanh cũng là một trong những yếu tố tạo nên sự cân bằng và tươi mới trong kiến trúc tổng thể của ngôi nhà.

Ngôi biệt thự được thiết kế mang phong cách không gian mở, tính kết nối của ngôi nhà với thiên nhiên được thể hiện qua những hệ thống cửa sổ và ban công giúp cho ngôi nhà thuận lợi trong việc lấy ánh sáng và gió tự nhiên và tiết kiệm điện khi sử dụng.

Tầng 3 ngoài những không gian sử dụng chính thì phần sân thượng phía sau nhà được sử dụng làm sân phơi, vị trí tiếp cận được với ánh nắng tự nhiên và vô cùng thông thoáng.

Ngôi biệt thự được thiết kế mang phong cách không gian mở, tính kết nối của ngôi nhà với thiên nhiên được thể hiện qua những hệ thống cửa sổ và ban công giúp cho ngôi nhà thuận lợi trong việc lấy ánh sáng và gió tự nhiên và tiết kiệm điện khi sử dụng.
3. Mặt bằng công năng: Biệt thự hiện đại của GĐ Chú Toàn tại Tân Uyên
 
  
 
4. 3D Nội thất biệt thự nhà Chú Toàn Tân Uyên























5. NAGOPA – Công ty thiết kế và thi công biệt thự hiện đại 3 tầng 5 phòng ngủ đẹp
Việc lựa chọn đơn vị thiết kế và thi công biệt thự hiện đại đẹp là vô cùng quan trọng. Kiến Trúc Xây Dựng NAGOPA tự hào là đơn vị thiết kế thi công xây dựng hàng đầu tại Bình Dương. Với đội ngũ Kiến Trúc Sư, Kỹ Sư dày dặn kinh nghiệm, với sự sáng tạo và thẩm mỹ cao, thi công xây dựng chất lượng và dịch vụ chuyên nghiệp.
Trên hành trình làm nghề với rất nhiều sản phẩm được ra mắt hàng năm, được khẳng định thương hiệu trên thị trường thiết kế và thi công các hạng mục Nhà Phố, Biệt Thự.
- Hotline: 0836 198 886
- Văn phòng tại: Số 32, Đường Lê Thị Trung, Phường Phú Lợi, Thủ Dầu Một, Bình Dương
- Email: xaydungnagopa@gmail.com
- Website: nagopa.com
Xem thêm:
- Mẫu biệt thự 3 tầng 8x20m tân cổ điển mái nhật có 6 phòng ngủ
- Biệt thự hiện đại 2 tầng 3 phòng ngủ 8x18m tại Đắk Lắk
- 33+ Biệt Thự Phố Đẹp: Kiến trúc mới, Xu hướng mới
- Thiết kế nhà đẹp tại Tân Uyên
- NAGOPA được thành lập và bắt đầu hoạt động vào năm 2018. Công ty được ra đời với sứ mệnh giúp cho nhiều gia đình tại địa phương Bình Dương tiếp cận được dịch vụ xây nhà chất lượng, tối ưu và tốt nhất. NAGOPA đã đồng hành cùng hàng trăm khách hàng có nhu cầu xây nhà tại Bình Dương, kiến tạo nên những ngôi nhà đẹp, tiện nghi và đáng sống. 


 
 


 
								 
								 
								 
								 
								








 
								 
								 
								 
								


 
								

