Nhà mái ngói là một trong những kiểu nhà khá phổ biến ở Việt Nam. Nó không chỉ mang vẻ đẹp thẩm mỹ mà còn có nhiều ưu điểm về độ bền, khả năng chống nóng, chống ồn và sở hữu nét đẹp duyên dáng vượt thời gian. Bài viết này hãy cùng với NAGOPA tìm hiểu vì sao nhà mái ngói được nhiều gia chủ Việt ưa chuộng? và tham khảo những mẫu nhà mái ngói đẹp dưới đây nhé.
Tìm hiều mái ngói là gì?
Mái ngói là một hệ thống mái nhà được cấu tạo từ nhiều viên ngói, thường được làm từ đất nung hoặc các vật liệu khác như xi măng, kim loại, nhựa,… Các viên ngói được xếp chồng lên nhau theo một cách nhất định để tạo thành một lớp mái che chắn, bảo vệ ngôi nhà khỏi các tác động của thời tiết như mưa, nắng, gió, bão. Hiện nay, kiểu dáng của ngói cũng được các nhà sản xuất biến tấu, tạo ra nhiều mẫu mã bắt mắt hơn phù hợp với xu thế.

Nhà mái ngói được nhiều gia đình Việt Nam yêu thích khi xây nhà
1. Cấu tạo của mái ngói
Mái ngói bao gồm hai phần chính:
- Khung mái: Là bộ khung chịu lực của mái nhà, thường được làm từ gỗ, thép hoặc bê tông. Khung mái có tác dụng nâng đỡ các viên ngói và truyền tải trọng lượng của mái nhà xuống móng.
- Ngói lợp: Là các viên ngói được lợp lên khung mái, có tác dụng che chắn và bảo vệ ngôi nhà. Ngói lợp có nhiều hình dạng, kích thước và màu sắc khác nhau, tùy thuộc vào loại ngói và phong cách kiến trúc.
2. Ưu điểm của mái ngói
- Tính thẩm mỹ: Mái ngói mang vẻ đẹp truyền thống, gần gũi với thiên nhiên và tạo điểm nhấn cho ngôi nhà.
- Khả năng cách nhiệt tốt: Mái ngói có khả năng cách nhiệt tốt, giúp ngôi nhà mát mẻ vào mùa hè và ấm áp vào mùa đông.
- Độ bền cao: Mái ngói có độ bền cao, có thể sử dụng trong nhiều năm mà không cần bảo trì, sửa chữa nhiều.
- Khả năng chống ồn tốt: Mái ngói có khả năng chống ồn tốt, giúp giảm tiếng ồn từ bên ngoài vào nhà.
3. Nhược điểm của mái ngói
- Trọng lượng lớn: Mái ngói có trọng lượng lớn, đòi hỏi khung mái phải chắc chắn.
- Giá thành cao: Mặc dù hiện nay trên thị trường có nhiều loại ngói với giá cả phải chăng.
- Thi công phức tạp: Thi công mái ngói đòi hỏi kỹ thuật cao và thời gian thi công lâu hơn.
- Khó bảo trì: Khi ngói bị thấm cũng khó để phát hiện kiểm tra
Các loại mái ngói phổ biến hiện nay
Ngày nay, kiểu dáng và chất liệu mái ngói rất đa dạng, từ kết cấu đến màu sắc. Nhờ vậy, bạn có thể dễ dàng lựa chọn được loại ngói phù hợp với ngôi nhà và phong cách kiến trúc mà mình mong muốn.
- Mái ngói đất nung
Là loại mái ngói truyền thống đã có từ lâu đời, nó được làm từ đất sét nung ở nhiệt độ cao, tạo ra những viên ngói có độ bền cao, khả năng chống thấm tốt và vẻ đẹp tự nhiên. Hiện nay ngói đất nung được sử dụng rộng rãi trong xây dựng nhà ở, biệt thự, đình chùa, miếu mạo và các công trình kiến trúc khác. Nó mang lại vẻ đẹp truyền thống, cổ kính và bền vững cho các công trình.

Ngói Phan Thanh Giản một trong những dòng ngói nung cao cấp được NAGOPA sử dụng cho các công trình
- Mái ngói xi măng
Ngói xi măng là một vật liệu lợp mái phổ biến trong xây dựng hiện nay. Nó được làm từ hỗn hợp xi măng, cát, nước và các chất phụ gia khác, trải qua quá trình nén và đóng rắn để tạo thành những viên ngói có hình dạng và kích thước khác nhau.
Ngày nay, ngói xi măng cũng được sử dụng rộng rãi trong xây dựng nhà ở, biệt thự, nhà phố, nhà cấp 4, các công trình công cộng và công trình công nghiệp. Nó mang lại vẻ đẹp hiện đại, sang trọng và bền vững cho các công trình.
- Mái ngói nhựa
Ngói nhựa là một vật liệu lợp mái ngày càng được ưa chuộng trong xây dựng hiện nay. Nó được làm từ nhựa tổng hợp, có nhiều ưu điểm nổi bật so với các loại ngói truyền thống. Ngói nhựa có trọng lượng nhẹ hơn nhiều so với ngói đất nung hay ngói xi măng, giúp giảm tải trọng cho mái nhà và khung kết cấu.
Những mẫu nhà mái ngói đẹp được người Việt ưu chuộng
1. Mẫu nhà vườn cấp 4 mái ngói
Ngôi nhà vườn cấp 4 mái ngói này được NAGOPA thiết kếcho gia chủ tại Thuận An, Bình Dương. Ngôi nhà không chỉ là nơi để ở mà còn là nơi để tận hưởng cuộc sống, hòa mình vào thiên nhiên và kết nối với gia đình.


Thông tin công trình:
- Tên ngôi nhà: S’s House
- Diện tích xây dựng: 90m2
- Số tầng: 01 tầng
- Thiết kế: NAGOPA
- Xem toàn bộ thông tin và hình ảnh công trình tại đây
2. Nhà vườn mái ngói hiện đại tại Bình Dương
Ngôi nhà được thiết kế theo kiểu nhà mái Nhật, sử dụng ngói màu cam đỏ tươi tắn, mang đến vẻ đẹp hài hòa giữa truyền thống và hiện đại.

Ngôi nhà được thiết kế với sân vườn rộng, nhiều cây xanh mang đến không khí trong lành, mát mẻ

Thông tin công trình:
- Tên ngôi nhà: H’s House
- Diện tích xây dựng: 170m2
- Số tầng: 01 tầng
- Thiết kế: NAGOPA
- Xem toàn bộ thông tin và hình ảnh công trình tại đây
3. Mẫu nhà mái ngói hiện đại mặt tiền 7m
Nhà mái ngói hiện đại đang trở thành xu hướng thiết kế nhà ở được ưa chuộng bởi sự kết hợp hài hòa giữa nét đẹp truyền thống và phong cách kiến trúc đương đại.

Ngôi nhà có thiết kế đơn giản, tinh tế, kết hợp giữa mái ngói và các vật liệu hiện đại như nhôm kính, lam thép.

Thông tin công trình:
- Tên ngôi nhà: T’s House
- Diện tích xây dựng: 7 x 10m
- Thiết kế: NAGOPA
- Phong cách thiết kế: Nhà hiện đại
- Địa điểm: Tân Uyên, Bình Dương.
- Xem toàn bộ thông tin và hình ảnh công trình tại đây
4. Nhà mái ngói 2 tầng có 3 phòng ngủ
Thiết kế này được NAGOPA thực hiện cho một gia đình gia chủ tại Tân Uyên, Bình Dương vào năm 2024. Qua góc nhìn trên cao, ngôi nhà hiện lên như một bức tranh yên bình với mái ngói cam đỏ tươi nổi bật trên nền tường trắng tinh khôi. Kiểu dáng mái thái xếp lớp uyển chuyển, tạo cảm giác vững chãi nhưng không kém phần duyên dáng.

Với thiết kế thông minh thể hiện được 2 mặt tiền cân đối, tiện nghi và gần gũi với thiên nhiên, ngôi nhà mái ngói 2 tầng này chắc chắn sẽ là lựa chọn hoàn hảo cho những ai mong muốn một không gian sống yên bình, thư thái.

Thông tin công trình:
- Tên ngôi nhà: Tuan’s House
- Diện tích xây dựng: 110m2
- Số tầng: 02 tầng
- Thiết kế: NAGOPA
- Xem toàn bộ thông tin và hình ảnh công trình tại đây
5. Nhà phố 2 tầng mái ngói đẹp sang trọng


Các cột nhà lớn, được thiết kế cột tròn không chỉ tạo sự vững chắc mà còn là điểm nhấn kiến trúc, mang đến vẻ đẹp mạnh mẽ và vững trãi.

Mái nhà được lợp bằng ngói màu cam đất, tạo nên vẻ đẹp ấm áp, gần gũi và sang trọng. Ngói lợp mái có độ bền cao, khả năng chống chịu tốt với thời tiết khắc nghiệt, giúp bảo vệ ngôi nhà khỏi mưa nắng.
Thông tin công trình:
- Tên ngôi nhà: TM’s House
- Diện tích xây dựng: 100m2
- Số tầng: Nhà 02 tầng
- Thiết kế: NAGOPA
6. Nhà biệt thự mái ngói kiểu nhật 2 tầng sang trọng



Thông tin công trình:
- Tên ngôi nhà: Quang’s House
- Diện tích xây dựng: 120m2
- Số tầng: 02 tầng
- Thiết kế: NAGOPA
- Xem toàn bộ thông tin và hình ảnh công trình tại đây
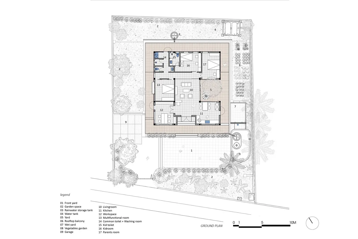
7. Nhà vườn 1 tầng mái ngói ở nông thôn

Nguồn: Sưu tầm



Mặt bằng công năng nhà mái ngói nhà vườn 1 tầng
Trên đây là nội dung được NAGOPA thực hiện hy vọng, các bạn sẽ có thêm những ý tưởng hỗ trợ cho việc xây nhà của mình. Nếu các bạn có nhu cầu xây nhà có thể liên hệ với chúng tôi theo thông tin dưới đây nhé:
Liên hệ với chúng tôi:
- Địa chỉ: Số 32, Đường Lê Thị Trung, Phường Phú Lợi, TP. Thủ Dầu Một, Bình Dương.
- Điện thoại/Zalo: 0836 198 886
- Website: nagopa.com
Có thể bạn cần tham khảo thêm:
- Các mẫu nhà hiện đại được yêu thích hiện nay
- Hơn 50+ Mẫu biệt thự mái nhật đẹp
- Top 10+ Mẫu thiết kế nhà mặt tiền 8m: Có kiến trúc ấn tượng
NAGOPA được thành lập và bắt đầu hoạt động vào năm 2018. Công ty được ra đời với sứ mệnh giúp cho nhiều gia đình tại địa phương Bình Dương tiếp cận được dịch vụ xây nhà chất lượng, tối ưu và tốt nhất. NAGOPA đã đồng hành cùng hàng trăm khách hàng có nhu cầu xây nhà tại Bình Dương, kiến tạo nên những ngôi nhà đẹp, tiện nghi và đáng sống.









